
产品分类
更新时间:2023-04-24
浏览次数:545胡冠楠
开云官方端网站登录入口电气股份有限公司 上海嘉定
【摘要】应急照明分为备用照明、安全照明及疏散照明。文章介绍了应急照明系统的设计、灯具选择、灯具布置、配电等要求。并结合实例进行疏散照明的计算,以指导应急照明系统的设计与应用。
【关键词】照度;光通量;消防应急灯具;A型消防应急照明灯具;消防应急照明和疏散指示系统。
引言
现代建筑楼层越来越高,功能越来越完善、平布局越来越复杂,对建筑防火要求越来越高 。建筑防火的首要目的就是要在火灾时保护人的生命安全,生命的保全首先立足于人们的自主疏散,其次再辅以救援,科学而高效的疏散设计 显得重要,消防应急照明和疏散指示系统是建筑防火中重要的组成部分。在工程应用中,公共照明一般分为正常明及应急照明,正常照明标准值均高于疏散照明照度标准值。而A型消防应急照明灯具光源功率小、光通量低,按疏散照明照度值设置相应数量A型消防应急照明灯具,其照度值不能满足正常照明昭度值求需同时设置正常照明灯具,以满足正常照明照度要求。
1 应急照明系统
应急照明分为备用照明、安全照明及疏散照明。正常照明电源失效时,需确保正常工作或活动继续进行的场所,应设置备用照明;需确保处于潜在危险之中的人员安全的场所,应设置安全照明;需确保人员安全疏散的出口和通道,应设置疏散照明。消防应急照明包括备用照明、疏散照明。消防作业人员及救援人员继续工作的场所,需设置备用照明。人员疏散,并为消防人员撤离火灾现场的场所,需设置疏散。指示标志灯和疏散通道照明。
2 消防应急照明和疏散指示系统设计
系统类型的选择应根据建、构筑物的规模、使用性质及日常管理及维护难易程度等因素确定:设置消防控制室的场所应选择集中控制型系统,设置火灾自动报警系统,但未设置消防控制室的场所宜选择集中控制型系统,其他场所可选择非集中控制型系统。系统设计需遵循系统架构简洁、控制简单的基本设计原则,包括灯具布置、系统配电、系统在非火灾状态下的控制设计、系统在火灾状态下的控制设计,集中控制型系统尚应包括应急照明控制器和系统通信线路的设计。
2.1 灯具的选择
火灾扑救过程中,灭火救援人员一般使用消火栓实施灭火,由于灭火用的水介质均具有一定的导电性,这样就会通过消火栓及其水柱形成导电通路,为了避免在火灾扑救过程中发生电击事故,综合考虑现有系统产品的技术水平和工程应用情况等因素,要求距地面2.5m至8m高度范围内设置的灯具应采用电压等级为安全电压的A型灯具;地面上设置的标志灯应选择集中电源A型灯具;采用节能光源的灯具,光源色温不低于2700K。
2.2 灯具的布置原则
照明灯的设置需保证人员在疏散路径及相关区域的疏散提供基本的照度;标志灯的设置需保证人员能够清晰地辨识疏散路径、疏散方向、安全出口的位置、所处的楼层位置。
2.3 系统配电
根据系统的类型、灯具的设置部位、灯具的供电方式进行设计。灯具的电源由主电源和蓄电池电源组成,且蓄电池电源的供电方式分为集中电源供电方式和灯具自带蓄电池供电方式。当灯具采用集中电源供电时,灯具的主电源和蓄电池电源由集中电源提供,灯具主电源和蓄电池电源在集中白源内部实现输出转换后由同一配白回路为灯具供由:当灯具采用自带蓄电池供电时,灯具的主电源通过应急照明配电箱分配电后为灯具供电,应急照明配电箱的主电源输出断开后,灯具应自动转入自带蓄电池供电。灯具采用自带蓄电池供电时,应急照明配电箱的设置:人员密集场所,每个防火分区应设置独立的应急照明配电箱;非人员密集场所,多个相邻防火分区可设置一个共用的应急照明配电箱。防烟楼梯间应设置独立的应急照明配电箱,封闭楼梯间宜设独立的应急照明配电箱。A型应急照明配电箱的输出回路不应超过8路,B型应急照明配电箱的输出回路不应超过 12 路。集中电源的设置:按防火分区的划分情况设置集中电源;灯具总功率大于5kW的系统,应分散设置集中电源。集中电源的额定输出功率不大干1kW时,可设置在由气竖井内。集中电源的输出回路不应超过8路。应急照明配电箱或集中电源的输人及输出回路中不应装设剩余电流动作保护器,输出回路严禁接人系统以外的开关装置、插座及其他负载。火灾状态下,灯具光源应急点亮、熄灭的响应时间:高危险场所灯具光源应急点亮的响应时间不应大于 0.25 s;其他场所灯具光源应急点亮的响应时间不应大于5s;具有两种及以上疏散指示方案的场所,标志灯光源点亮、熄灭的响应时间不应大于5s。
2.4 集中控制型系统的设计
应急照明控制器通过集中电源或应急照明配电箱连接灯具,并控制灯具的应急启动、蓄电池电源的转换。集中电源或应急照明配电箱与灯具的通信中断时,非持续型灯具的光源应急点亮、持续型灯具的光源由节电点亮模式转入应急点亮模式。应急照明控制器与集中电源或应急照明配电箱的通信中断时,集中电源或应急照明配电箱连锁控制其配接的非持续型照明灯的光源应急点亮、持续型灯具的光源由节电点亮模式转入应急点亮模式。非集中控制型系统的设计:非火灾状态下,系统的正常工作模式需保持主申源为灯具供电,系统内非持续型照明灯的光源应保持熄灭状态,持续型灯具的光源应保持节电点亮状态:火灾确认后,应能手动控制系统的应急启动,灯具采用集中电源供电时,应能手动操作集中电源,控制集中电源转人蓄电池电源输出,同时控制其配接的所有非持续型照明灯的光源应急点亮、持续型灯具的光源由节电点亮模式转人应急点亮模式:灯具采用自带蓄电池供电时,应能手动操作切断应急照明配电箱的主电源输出,同时控制其配接的所有非持续型照明灯的光源应急点亮、持续型灯具的光源由节电点亮模式转入应急点亮模式:设置区域火灾报警系统的场所,尚应能自动控制系统的应急启动。
3疏散照明度计算
部分公共区域照度值见表 1。

表1 正常照明及疏散照明照度标准值(人员密集场所) LX
采用“利用系数法"计算疏散照明平均照度。
(1)平均照度
Eav =NφUK/A
式中:Eav为工作面上的平均照度,lx;Φ为光源光通量, lm; N为光源数量;U 为利用系数;A 为工作面面积,m2;K为灯具的维护系数;
(2)室空间比:
RCR =5hr(l+b)/l.b
式中:l为室长,m;b为室宽,m;hr 为室空间高,m;
(3)室形指数:
RI=lb/hr(l+b)=5/RCR
3.1 计算举例
依据图1进行计算。

图1 消防电梯前室内照明平面
(1)室空间比
RCR=5hr(l+b)/l.b =5x2.75x(4+3)/4x3=8;
(2)室形指数
RI = 5/RCR =0.625:
根据《照明设计手册》第三版利用系数表 5-17 插入法求出利用系数 U=0.54;灯具维护系数 K=0.8;灯具光通量500 lm。
Eav=1x500 x0.54 x0.8/12 = 18 lx.
3.2 计算结果
Eav =18lx,疏散照明照度值小于“表1"公共区域正常照明地面照度值 50lx。
在距地面8m及以下需设置疏散照明的区域仅设置 A型消防应急照明灯具时,其照度远不能满足正常照明照度要求,需同时设置正常照明灯具、以满足正常照明照度要求。
4.开云官方端网站登录入口消防应急照明和疏散指示系统产品选型
4.1系统简介
消防应急照明和疏散指示系统由控制器(主机)、集中电源(供电),分配电装置(分机)和灯具(疏散指示灯、应急照明灯)等几部分组成。该系统配合火灾报警控制器的使用,在危急时刻,能够快速针对风向、就近出口、火灾的走势、人群密度做出分析,给出安全的疏散路径指示,智能打开消防应急标志灯的指示方向以及应急照明灯,帮助建筑内的人群实时地选择逃生路线,指引安全逃生方向,保障群众的人身安全,为各商家担心的安全问题解决了后顾之忧。
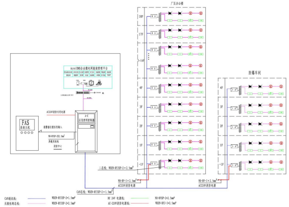
4.2系统结构

4.3系统功能
4.3.1系统运行主界面
包含工具栏、平面展示、图层列表、状态栏,可以直观的查看监控设备的运行状态,并根据状态栏的现实内容直接切换至故障具体位置。

4.3.2 灯具配置界面
可以查看所有灯具状态与数量。

4.3.3信息界面
可查看历史操作、故障、事件信息、可按日期进行查询。

4.3.4权限管理界面

主要由应急启动、应急停止与手动火警组成,应急启动与停止用来测试设备应急功能是否正常,手动火警测试再具体着火点下系统的启动情况。
4.4消防应急照明和疏散指示系统产品选型
4.4.1应急照明控制器选型



参考文献:
[1]照明设计手册[M]3 版.北京:中国电力出版社,2016.
[2]GB17945-2010消防应急照明和疏散指示系统[S].
[3]GB51309-2018 消防应急照明和疏散指示系统技术标准[S][4] GB50034-2013 建筑照明设计标准[S].
[4]罗利.浅析应急照明系统设计与应用.
[5]开云官方端网站登录入口企业微电网设计与应用手册2022.05版.