
产品分类
更新时间:2023-05-30
浏览次数:571胡冠楠
开云网页版登录入口电气股份有限公司 上海嘉定
摘要:介绍 KNX总线技术智能照明的优势,提出一种基于KNX总线的智能家居照明控制系统的设计方案和实现方法。根据室 内功能及家具布置,制定了室内灯具布置和照明控制回路,实现了照明控制的灵活性和方便性。
Abstract: The advantages based on KNX bus intelligent lighting are introduced. A design scheme and realization method of smart home lighting control system are proposed based on KNX bus. According to the indoor function and furniture layout, indoor lamps layout and lighting control circuit are established. The flexibility and convenience of lighting control are realized.关键词:KNX总线,智能家居,照明控制
Key words: KNX bus, smart home, lighting control1、引言
当今,随着人们追求生活体验水平的提高。越来越多的住宅引入了智能家居,智能家居让家居生活更具有可靠性、舒服性 、艺术性。人们对于智能家居中的灯光控制尤为在意,不同的场景模式对应于不同的灯光控制,使人们的居住舒服感大大增强。本文提出了一种基于KNX总线的智能家居照明控制系统,在实际运行中体现了其方便性和灵活性,并就其控制系统、平面布越、控制同路做出简要阐述。
2、KNX总线技术智能照明的优势
传统的家居照明控制,是基于开关触点的接通与断开来控制,达不到节能、灵活、方便的效果,特别是在一些需要调光的场所,传统开关面板控制就显得无能为力。
KNX总线的照明控制能够方便灵活地实现各种场景控制,各种传感器、控制模块等设备单元连接在KNX总线上,通过软件对所有设备单元进行编程实现控制:所有的控制单元均内置微处理器和存储单元,整个系统无终端主机,不会因主机故障而导致整个系统瘫痪:除了能够对灯光的控制外,还能实现对窗帘、空调等多种设备的控制:可使用多种通信介质,包括双绞线、电力线和无线通信:可采用多种系统配鼹模式,包括S型、E型和A型3种系统配簧模式。传统照明控制方式和智能照明控制方式对比如图l所示。
图 1 传统照明控制方式和智能照明控制方式对比 KNX总线设备产品主要包括各类型的输入/输出装置,如各种传感器、调光器、多功能开关 等。它们主要由BCU(总线耦合单元)、AM(应用模块)、AP(应用程序)三部分组成。
3、智能家居照明控制系统
本项目住宅为公寓住宅,配置了智能家居控制方案,其中照明为集中控制加分散控制方式。客厅区域配置了8键智能照明控制面板,通过对8键面板进行定义,可以一键对客厅的灯光、窗帘、空调、新风、地暖、所有受控设备进行控制管理,实现集中控制。其他区域配置了2键、4键输入模块控制面板,主要用于对厨房、卧室、卫生间等照明分散控制。
公寓照明控制系统设备组成原理图如图2所示。系统设备包括施耐德KNX总线电源、12路16A开关控制模块、4路16A开关控制模块、2键输入模块、4键输入模块、8键智能面板、l2V开关电源、24V开关电源、室内控制网关、空调可视对讲网关等。该系统中各设备功能如下。
图2 公寓照明控制系统设备组成原理图 1)KNX总线电源。可以带32个总线设备,并为其提供总线电压;内置扼流器,用于隔离总线的供电;带开关,可以复位连接在线路上的总线设备。
2)4路/12路16A开关控制模块。带内置总线耦合器,通过常开触点对4路/12路负载进行相互独立的开关操作,也可使用手动开关来对输出进行控制。
3)2键/4键输入模块。跟复位开关配合使用,连接两个常规控制面板或无源触点。
4)8键智能照明控制面板。带内置总线耦合器和8个操作按键,通过编程定义8键面板,可以实现各种场景控制。
5)室内控制网关及空调、可视对讲网关。KNX室内控制网关连接KNX网络与IP网络,KNX设备可以通过5个智能手机或平板电脑控制。该网关还可以作为一个编程接口实现电脑与KNX
总线的连接。空调、可视对讲网关的控制或设定。
6)LED灯灯具。采用的灯具包括LED筒灯6个,射灯22个,淋浴间防雾灯1个,灯槽内藏灯带7条。
所有系统设备通过KNX总线连接,照明灯具的回路根据各个工功能区的使用要求划分。通过对智能面板的操作,智能面板的内部存储器和逻辑控制器会发送事先预存设置的数字控制信号到系统控制总线上,控制信号被总线上的照明开关控制模块、调光模块或窗帘控制模块接收后,相关的控制模块会进行相应操作,打开或者调节灯光窗帘。智能面板的操作内容可以通过电脑设置进行灵活变化。2键/4键输入模块与复位开关配合使用,控制信号通过总线发送至开关控制模块,开关控制模块再控制灯具回路的启闭。4、室内灯具平面布置及各照明控制回路
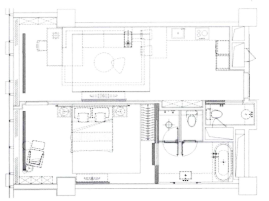
其中一个户型的室内家具布置示意图如图3所示。包含的灯具有筒灯、射灯、灯带、防雾灯等。各灯具布置布置如图4所示。客厅主要位置安装8键智能控制面板外,在厨房、卧室、卫生间等入门处设置2键/4键输入模块与复位开关配合使用。既可通过智能面板与复位开关控制,还可在可视对讲、智能手机或IPADAPP上控制,实现控制方式的多样性和灵活化。
图3 室内家具布置示意图
图4 室内灯具布置
各照明控制网路根据控制灵活方便、回路尽可能细化的原则进行划分,如表l所示。室内设置配电箱、弱电箱及智能家属控制箱,配电箱提供空调盘管同路、洗衣机冰箱插座、微波炉 、电烤箱等大功率设备回路。智能家居控制箱集成开关控制模块、各种网关、开关电源等,实现对灯光及室内设备的控制。智能照明系统通过一条2*2*0.8的EIB总线电缆将系统所有部件连通。在施工图一次设计中需要在平面图中预留SC25钢管,以备施工后期穿线用。
表l 照明控制回路

5、开云网页版登录入口智能照明控制系统介绍
5.1系统简介
Acrel-BUS智能照明控制系统,是基于KNX总线技术设计的控制系统。KNX总线技术起源于欧洲,是在EIB,Batibus和EHS这三种住宅和楼宇的总线控制技术上发展起来的,其中EIB(European Installation Bus,欧洲安装总线)是该总线技术的主体。
Acrel-BUS智能照明控制系统采用标准的2*2*0.8EIB BUS总线(即KNX总线)作为总线线缆,将所有的智能照明控制模块连接到一起并组成一套完整的控制系统,既可实现照明灯具的远程集中控制,又可实现就近控制功能。该系统理论连接控制模块数量达580000多个。
开云网页版登录入口智能照明产品种类齐全,方案完善。用户可通过控制面板、人体感应、照度感应、微波感应、上位机系统、触摸屏、手机、平板端等多种控制终端实现灵活多样的智能控制,特别适合于各类智能小区、医院、学校、酒店,以及体育场所、机场、隧道、车站等大型公建项目的照明系统。
5.2系统工作原理示意图(见图4)

图5 系统工作原理示意图
5.3产品选型
5.3.1开关驱动器

5.3.2调光驱动器

5.3.3可控硅调光模块

5.3.4传感器

5.3.5总线电源

5.3.6智能面板

5.3.7干接点、湿接点输入模块

5.4系统功能
1)光照度(需要配照度传感器)监测,对利用自然光照明区域,根据自然光照度变化,进行照明控制和调节,满足照明和节能要求;
2)公共区域、走廊、通道、门厅、电梯厅等的照明,应设置红外或微波类人体感应器,并结合智能控制面板,实现各种场景照明控制,尽可能较少灯具点亮时间;
3)楼梯间照明采用人体感应探测控制;
4)设备房、设备房走道采用分组就地控制;
5)室外路灯、景观等照明采用光照度控制结合时控的集中控制方式;
6)监控系统界面友好,画面美观,实时显示各区照明工作状态;
7)应具有完善的用户权限管理功能,避免越权操作;
5.5系统的控制优势
1)系统可通过、触摸屏、电脑对现场的灯光、空调及窗帘等进行远程集中控制,使得控制更加方便智能,用户体验更舒服;
2)系统中控制模块均工作在直流30V可靠电压下,用户操作更加可靠、舒服;
3)系统在实施过程中,充分结合自然光及人员的活动规律来自动控制灯光,减少能源消耗,达到很好的节能效果;
4)系统采用分布分布式KNX总线结构,搭建简单灵活,系统内各模块互不影响,可独立工作,可靠性更高;
5)多种控制方式可供选择,如本地控制,自动感应控制,定时控制,场景控制和集中控制等,控制方式更灵活;
6)系统的自动控制、远程集中控制等功能,在实现自动化的同时,大量减少了值班人员,提高了管理水平和工作效果;
7)升级系统内控制模块或更改系统功能时,无需增加连接线,不需关闭整个系统,只需更改设备参数即可实现,维护方便,操作简单;
8)系统可与消防系统联动,在出现消防报警时,强制打开应急回路,方便人员疏散,从而降低了人员伤亡的风险,提高了建筑的可靠性。
5.6开云网页版登录入口组网方案
智能照明控制系统组网方式灵活,扩展方便,当系统模块数量较少、距离较近、范围较小时,各设备以树形枝状延伸,构成支路系统智能照明控制系统;当系统模块数量较多、距离较远、范围较大时,用支线耦合器组成多条支路,构成区域智能照明控制系统;当系统模块数量很多、距离很远、范围很大时,用支线耦合器、区域耦合器等构成楼群智能照明控制系统。(见图5)

6、结束语
本文论述 了基于KNX总线的智能家居照明控制系统的设计与实施方法,通过合理构建系统、规划灯具布置和控制回路,使照明控制系统达到了预期的目标和效果KNX照明系统具有控制灵活、扩展方便、节约能源等优点,能够提高智能家居舒服性、可靠性。但是目前价格稍高,未来使产品成熟、竞争多样、价格便宜,是推广应用家居智能照明的方向。
【参考文献】
[1] 李军. 基于DALI协议的家居 LED智能照明控制系统的设计与实现【J】.现代 建筑电气 ,2014,5 ( 8) :11.15
[2] 刘会兵.基于 KNX总线的智能家居照明控制系统设计
[3] 开云网页版登录入口企业微电网设计与应用手册.2019.11版