
产品分类
更新时间:2023-06-27
浏览次数:646胡冠楠
开云官方端网站登录入口电气股份有限公司 上海嘉定
【摘要】:消防应急照明和疏散指示系统由控制器、集中电源或配电箱和灯具(疏散指示灯具、应急照明灯具)等几部分组成。系统采用17寸工业平板电脑、Windonws7系统,可支持协议联动报警、系统监控、故障报警、自检、备电、记录存储与查询、导光流、权限控制等多项功能,具有集中控制、实时监测、灵活性高和可靠性强等特点。配合标志灯与应急照明灯具,适用于区域内商业建筑群,满足范围广、建筑结构复杂等特点的项目。
【关键词】:集中控制、集中电源、消防应急照明和疏散指示系统、康养中心
0. 前言
随着经济与科技的迅猛发展,人们开始追求建筑设施的人性化、现代化,大量的大型建筑,及地下建筑的涌现导致建筑物通道更长、更复杂。随着人们安全意识的提高,本着以人为本、生命安全为重的想法,对于人员密集、疏散距离长、疏散通道多、拐弯多、环境复杂的建筑,采用传统的疏散指示方式不能及时的发现灯具出现故障,并及时的对灯具进行维护管理。为了确保火灾发生时设备处于正常状态,能够正常工作,实施迅速有效的应急疏散系统,集中控制型应急照明和疏散指示系统应运而生,可准确实现对各应急灯具的实时监控和控制、日常24小时管理维护,保证系统运行正常,在发生火灾时准确、迅速的引导人员到达安全区域,减少人员伤亡。
1. 项目介绍
本项目是某康养中心公建项目,包括康养中心1号~5号楼,1、4号楼建高17m、9m共两层,2、3号楼建高17m共四层,5号楼建高13m共三层,该项目总占地面积约1.5万㎡,本司负责建筑内消防应急照明和疏散指示系统,共5栋楼,无地下建筑。要求各场所内采用消防应急疏散指示逃生系统,在安全疏散出口和走道设置疏散照明和疏散指示。当火灾发生时,可通过火灾监控系统的烟感探头等检测到具体的火灾位置,并以通信方式将指令传输至本系统的消防主机,以控制场所内疏散标志的箭头指向,确保人员沿正确的方向逃生及疏散。
2. 现场项目应用产品简介
2.1 消防应急照明和疏散指示系统
消防应急照明和疏散指示系统由控制器(主机)、集中电源和灯具(疏散指示灯具、应急照明灯具)等几部分组成。此处只介绍主要产品。
通常把应急疏散控制器称为主机,正常状态下主机可以实时监测接入灯具的状态;发生火灾时,主机可以与火灾自动报警控制器进行联动,从数据库中调出针对不同火灾报警点的预案逃生路线,控制不同种类的灯具发出闪烁、开灯、灭灯、改变指示方向,指引人员沿预案逃生路线逃生。
集中电源主要为分配电装置和灯具备用电源的结合,设置在消防控制室内;当发生火灾时在主电切断的情况下为应急疏散照明灯具和疏散指示灯具供电,确保应急照明和疏散指示系统的正常工作。
消防应急照明灯具主要在系统应急时,为人员的疏散提供照明。采用DC36V供电安全可靠,LED灯珠光源功耗低,使用寿命长,控制器可以实时监控灯具状态。
消防应急标志灯主要在系统应急时,为人员的疏散提供方向的指示。采用DC36V供电安全可靠,绿色LED光源节能环保,控制器可对灯具进行方向控制和监控灯具的状态。
2.2 控制器A-C-100
2.2.1 控制器技术参数和产品图片如下表2.1.1

表2.2.1
2.3 集中电源
2.3.1 A-D-0.5KVA-A200FP集中电源技术参数和产品图片如下表2.3.1

表2.3.1
2.4 灯具

3 现场应用
3.1 系统组网图

3.2 现场部分系统图纸
本项目采用的方案是,琴台主机到集中电源采用CAN总线的通讯方式,以手拉手的方式进行连接;集中电源到灯具采用二总线进行通讯并供电,集中电源放置在一层配电间内,集中电源到灯具的连接以手拉手、树形、星型进行连接。

图3.1 消防应急照明和疏散指示系统

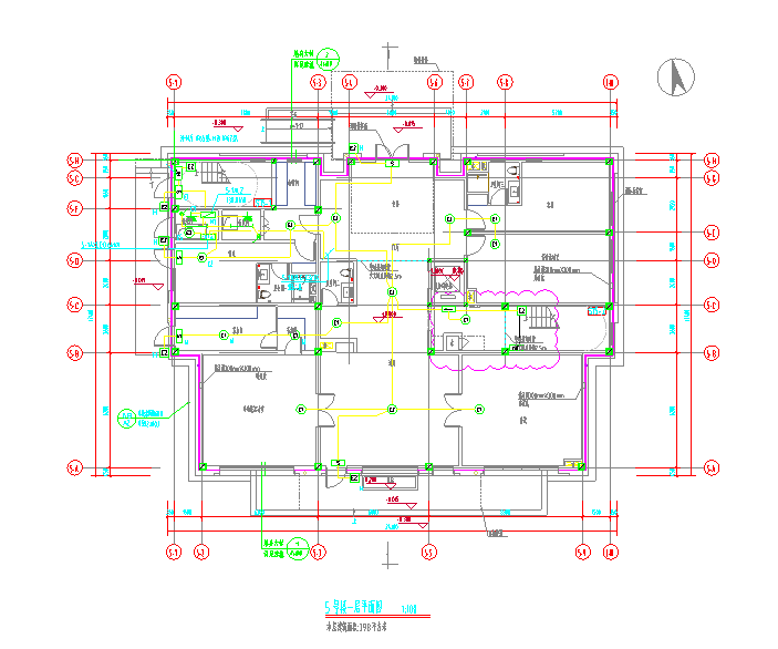
图3.2 二层应急照明平面图

图3.3 一层应急照明平面图
3.3 主机系统软件运行界面
系统运行主界面
在系统菜单界面有月检、年检、复位等操作功能。

灯具配置界面
灯具列表视图监测灯具的实时状态。

事件记录界面
可查看历史操作、故障信息,可根据日期进行查询。

3.4 设备现场应用照片

4. 结束语
近年来我国经济快速发展,人们在适意的生活中对安全消防的意识也逐渐提高,从而对建筑的消防要求也随之提高。本文分析了本公司生产的消防应急照明和疏散指示系统设备在疗养中心建筑场所的应用,实现了应急灯具在火灾发生时,能够按照火警点的位置自动计算好疏散逃生路径,指引人员迅速逃离现场。系统有着设备组成简单、稳定、灯具低压安全的优点。解决了传统消防应急疏散指示系统无集中控制、指示方向固定、疏散线路不能改变、指示效果不理想、安全性能低等问题。
开云官方端网站登录入口电气着力打造各类火灾安防系统的产品,在满足国家行业标准要求的前提下,为各类建筑提供智能、节能、廉价的消防方案与消防产品,为防火减灾、保障人民生命财产安全方面尽一份力!
参考文献
[1].开云官方端网站登录入口电气股份有限公司产品选型手册.2018.01
[2].GB50116-2014 《建筑设计防火规范》[S].
[3].GB17945-2010《消防应急照明和疏散指示系统》[S].
[4].GB51309-2018《消防应急照明和疏散指示系统技术标准》[S].