
产品分类
更新时间:2023-12-22
浏览次数:666胡冠楠
开云官方端网站登录入口电气股份有限公司 上海嘉定 201801
摘要:为了解决地下管线的敷设问题和提高环境质量,从城市地下综合管廊的建设入手,阐述了城市地下综合管廊监控系统的功能、结构及实现方案。对入廓管线运行状态、管廊环境安全及维护人员进行监控和管理,使地下管廊内设备的运行状态和管廊的环境状态一目了然,保证城市地下管廊的安全运行,实现城市地下管廊的“自动化监控、智能化管理"。
关键词:地下管廊;安全监控;环境监控;管理平台
0引言
城市地下综合管廊又称共同沟,是指在城市地下用于集中敷设电力、通信、广播电视、给水、排水、热力、燃气等市政管线的公共隧道。城市地下综合管廊避免了由于敷设和维修地下管线频繁挖掘道路而对交通和居民出行造成影响和干扰,利于保持路容完整和美观,便于各种管线的敷设、增减、维修和日常管理。在发达国家城市发展现代化、科学化的标准之一。
我国的地下管廊建设起步相对较晚,近年来,国务院高度重视推进城市地下综合管廊建设,2013年以来先后印发了《国务院关于加强城市基础设施建设的意见》(国发〔2013〕36号)、《国务院办公厅关于加强城市地下管线建设管理的指导意见》(国办发〔2014〕27号)《关于推进城市综合管廊建设的指导意见》(国办发〔2015〕61号),2015年6月又发布了《城市综合管廊工程技术规范》,全面推进城市地下综合管廊建设。

图1城市地下综合管廊示意图
1监控系统功能
根据国家《城市综合管廊工程技术规范》(GB50838—2015)要求,城市地下综合管廊(图1)要设置监控系统。监控系统是采用计算机技术、通信技术、控制技术,对管廊各专业管线(电力电缆、给排水管、燃气管道)运行安全、管廊环境(有害气体、淹积水、温湿度、风机水泵、照明)安全及人员安全(出入口管理、人员定位、远程广播、应急通信)进行监控和管理的系统。使地下管廊内设备的运行状态和管廊的环境状态一目了然,实现“自动化监控、智能化管理"。图2显示了城市地下综合管廊监控系统功能。

图2城市地下综合管廊监控系统功能
1.1管廊环境安全监控
1)管廊有毒有害气体监测:实现管廊内一氧化碳、硫化氢.、甲烷及空气含氧量的远程监测,并通过现场的LED屏实时显示相应区域的有害气体含量^超标时实现与风机的联动控制,保证进入管廊人员的安全。
2)管廊淹积水监测:实现管廊内积水井水位监测,水泵联动控制。
3)超限报警:环境参数超标自动报警,在监控管理平台的图形展慧畀商上闪烁显藜,并可以通过语音、短信方式自动通知值班人员。
4)管廊内供电设施监控:监测管廊供电系统开关分合状态,电能参数等。
1.2管廊防入侵及人员安全监控
1)远程电子井盖开启:管廊出入口安装电控电子井盖/电控锁,可通过监控中心、电话语音、短信开启井盖/电控锁。
2)非法入侵报警:管廊井盖/出入口非法开启告警,监控中心对井盖/出入口的异常状况发出视听告警,集中监控平台的图形界面上闪烁显示,并通过语音、短信方式自动通知值班人员。
3)人员定位:对出入地下管廊的人员进行授权管理,只有经授权的人员在授权时间内可进入综合管廊,并采用定位系统实现对进入管廊内的人员进.行位置定位及人员轨迹跟踪,实时拿握管廊内人员的实际位置,既方便运维单位对进入管廊人员的管理,又能有效保障进入人员的人身安全。
4)应急通信:管廊在地下,手机无法通信,在管廊内建设通信系统,实现管廊内与监控中心之间的应急通信。
5)公共广播:在管廊内设置公共广播,紧急情况下,指挥管廊内人员安全疏散。
1.3专业管线状态监测
1)电力电缆运行状态监测:对入廊的电力电缆进行电缆运行电流监测、高压电缆护层接地环流监测和高压电缆接头温度监测,超限或异常状况自动告警。历史曲线、载流量柱状图展示,保证电缆的安全运行,为运行单位提供电缆健康状态分析。
2)给排水管网状态监测:对入廊的给水管进行漏水、流量监测,异常时关断管路紧急切断阀门。
3)燃气管网状态监测:对入廊的燃气管道进行漏气监测,异常时关断管路紧急切断阀门,保障燃气管网的安全运行。
1.4视频图像监控
1)出入口视频图像监控:在管廊井盖/出入口安装摄像机,实现与井盖/出入口监控系统的联动,摄像机在井盖/出入口开启时自动启动LED灯并传送视频信号。
2)重要设备视频图像监控:在管廊内主要设备处安装摄像机,实时监视现场设备的状况。
3)视频图像侦测:视频监控系统除了具备数字化摄像监控系统自身的视频采集、存储、报警、联动等基本功能外,还具备图像分析处理能力,对宁进入J区的非法闯入行为自动报警。
2地下管廊监控系统的应用
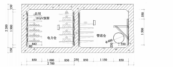
昆明市某地下综合管廊,位于昆明滇池国际会展中心区域,长度7.6km,设电力仓和管道仓2个,其断面结构如图3所示

图3昆明某地下综合管廊断面图
该管廊内设置监控系统,其实现方案如下:
2.1系统结构
监控系统采用“分散控制,集中管理"的原则,系统由中心)、区域监控层(分控站)及监控终端层构成(图4)
中心可对整个城市的多条综合管廊进行监控和管理,监控各专业管线运行状况、管廊环境状况,出入口管理、应急通信、视频监控及消防系统接入,以及各系统之间的联动控制、应急处置。
区域监控层(即分控站):将监控终端的数据信息上传到中心控制层对监控终端下达控制指令,实现对本管廊内风机、水泵、出入口等控制终端的远程控制。
监控终端层:包括各类采集器、现场控制器及通信设备,实现各类信息的采集及对风机、水泵、灯光、出入口等设备的控制。

图4综合管廊监控系统结构图
2.2监控分区
地下综合管廊每200m设一个防火分区,防火分区之间用防火门分隔。监控系统也按防火分区设监控分区,每个监控分区对防火分区内的管廊有害气体、淹积水、温湿度进行采集,对风机、水泵、照明等进行监控。
每个监控分区设监控主机1台,采用可编程控制器(PLC)。分区内的气体探测器通过PLC的AI接入,红外探测器通过PLC的DI口接入。管廊内的风机、水泵、照明、井盖及门锁因相互之间距离较远,为减少布线,采用远程I/O模块通过Modbus控制总线与监控主机相联实现控制。每个监控分区设1台工业交换机,将分区监控主机PLC、视频信号、LED屏、应急W络电话等信息汇集向管廊的本地监控站或管廊区域监控中心上传。图5为监控分区设备联接图。
2.3通信
地下综合管廊长度一般在几百米到几千米之间,划分为多个监控分区。通信传输网络采用业光纤环网构建整个监控系统的数据通信传输网络,以监控中心为节点敷设6芯单模铠装信号光缆作为通信主干,每个监控分区设置1台工业级光纤环网交换机,作为该监控分区所有监测数据的传输节点,光纤环网交换机等级达到IP66,保障系统通信带宽的同时保障网络的可靠性。每个监控分区设置的光纤环网交换机负责该防区的所有网络通信设备的数据接入(监测、控制、视频、语音、消防)及传输,并支持网络管理。

图5监控分区设备联接图
2.4监控管理平台
在监控中心示意图,图7是监控管理平台功能图,图8是监控管理平台结构图。

图6监控中心示意图

图7监控管理平台功能

图8监控管理平台结构
监控管理平台可实现如下功能:
1)集中设备管理:通过登录监控中心管理平台可对综合管廊内所有监测设备进行统一管理监控。
2)智能分析:系统管理平台内置智能分析数据库动对实时采集的数据进行分析判断,并与历史数据进行对比,为用户提供参考数据。
3)GIS地图显示:可将管辖范围内的设备准确地在GIS地图上显示,方便设备故障定位及时抢修,设备地理位置信息可采用GPS数据进行定位,如图9所示。
4)WEB参数配置:管理人员可在监控中心通过工程师站对综合管廊内设备进行远程参数调整配置。
5)WEB服务管理:服务器具备完善的WEB服务器管理功能,方便管理系统设备和各种资源。
6)网络安全特性:采用CHAP协议认证、DES加密进行视频数据保护,保证网络通信安全可靠。
7)分级用户管理:可根据地下综合管廊内设备的管理归属,实现分组管理;根据不同需要,设定各级用户,使用不同权限访问不同资源,实现分级管理。
8)操作记录查询:系统可自动存储各个操作人员各个时间段的操作记录及操作内容进行系统的分析统计。
9)日志管理:服务器具备完善的日志功能,便于查询和整理。
10)自动生成各种历史表格。管理平台可根据用户需求自动生成各种历史数据、报警数据、历史曲线等多种数据表格,并支持导出功能。
11)3D图形显示:电力电缆接头温度、电子井盖支持3D显示,实时查看电缆接头每个点位温度及电子井盖的开启状态,如图10所示。
12)多种报警方式:管理平台支持语音、声光、短信等多种报警提示方式,报警信息可直接短信发送至相关负责人员手机。

图10井盖/出入口控制/状态
3 AcrelEMS-UT综合管廊能效管理平台
3.1平台概述
AcrelEMS-UT综合管廊能效管理平台集电力监控、能源管理、电气安全、照明控制、环境监测于一体,为建立可靠、安全、高效的综合管廊管理体系提供数据支持,从数据采集、通信网络、系统架构、联动控制和综合数据服务等方面的设计,解决了综合管廊在管理过程中存在内部干扰性强、使用单位多及协调复杂的根本问题,大大提高了系统运行的可靠性和可管理性,提升了管廊基础设施、环境和设备的使用和恢复效率。
3.2平台组成
开云官方端网站登录入口城市地下综合管廊能效管理系统是一个深度集成的自动化平台,它集成了10KV/O.4KV变电站电力监控系统、变电所环境监控系统、智能马达监控系统、电气火灾监控系统、消防设备电源系统、防火门监控系统、智能照明系统、消防应急照明和疏散指示系统。用户可通过浏览器、手机APP获取数据,通过一个平台即可全局、整体的对管廊用电和用电安全进行进行集中监控、统一管理、统一调度,同时满足管廊用电可靠、安全、稳定、高效、有序的要求。
3.3平台拓扑
3.4平台子系统
3.4.1电力监控
电力监控主要针对10/0.4kV地面或地下变电所,对变电所高压回路配置微机保护装置及多功能仪表进行保护和监控,对0.4kV出线配置多功能计量仪表,用于测控出线回路电气参数和用能情况,可实时监控高低压供配电系统开关柜、变压器微机保护测控装置、发电机控制柜、ATS/STS、UPS,包括遥控、遥信、遥测、遥调、事故报警及记录等。

3.4.2环境监测
环境监测包括温湿度、烟感温感、积水浸水、可燃气体浓度、门禁、视频、空调、消防数据的采集、展示和预警,同时也可接入管廊舱室内的水泵和通风排烟风机等设备集成的第三方系统完成管廊环境综合监控。

3.4.3电气安全
AcrelEMS-UT能效管理系统针对配电系统的电气安全隐患配置相应的电气火灾传感器、温度传感器,消防设备电源传感器、防火门状态传感器,接入消防疏散照明以及指示灯具的状态实时显示,并且对UPS的蓄电池温度、内阻进行实时监视,发生异常时通过声光、短信、APP及时预警。

3.5相关平台部署硬件选型清单
3.5.1电力监控及配电室环境监控系统
应用场合(10KV) | 产品 | 型号 | 功能 | |
| 10KV进/馈线 |
| AM6-L | 相间电流速断保护,相间X时电流速断保护(可带低压闭锁),相间过电流保护(可带低压闭锁),两段式零序过流保护,反时限相间过流保护(可带低压闭锁),零序反时限过流保护,过负荷保护,控制回路异常告警。 |
10/0.4KV变压器 | AML-S | 分合闸位置、手车工作/试验位置、接地刀闸位置、硬接 点信号(保护跳闸、装置告警、控制回路断线、 装置异常、未储能、事故总等)、报文(过流、过负荷、超温报警、过温报警、装置告警、PT 断线、CT 断线、对时异常等) 、遥控 开关、故障波形分析(故障录波、故障波形、故障记录、 跳闸、故障电流电压)等。 | ||
智能操控装置 |
| ASD500 | 一次回路动态模拟图、弹簧储能指示、高压带电显示及闭锁、验电、核相、自动温湿度控制及显示(标配一路强制加热)、远方/就地旋钮、分合闸旋钮、储能旋钮、人体感应、柜内照明控制、RS485接口、高压柜内电气接点无线测温。 | |
10KV计量 |
| PZ72L- E4/UT | 该仪表采用交流采样技术,能分别测量电网中的电流、电压、功率、功率因数和电能等参数,可通过面板薄膜开关设置倍率。带RS-485通讯接口,采用Modbus协议;也可将电量信号转换成标准的直流模拟信号输出;或带开关量输入/输出,继电器报警输出等功能。具有许昌开普研究院有限公司、中心检测合格的型式检验报告证书和电磁兼容检验证书,产品防护等级均达到IP65,符合管廊综合监控系统中对相关产品功能、防护等级及电磁兼容的要求。 | |
应用场合(0.4KV) | 产品 | 型号 | 功能 | |
| 0.4KV进/出线 |
| PZ72L- E4/UT | 该仪表采用交流采样技术,能分别测量电网中的电流、电压、功率、功率因数和电能等参数,可通过面板薄膜开关设置倍率。带RS-485通讯接口,采用Modbus协议;也可将电量信号转换成标准的直流模拟信号输出;或带开关量输入/输出,继电器报警输出等功能。具有许昌开普研究院有限公司、中心检测合格的型式检验报告证书和电磁兼容检验证书,产品防护等级均达到IP65,符合管廊综合监控系统中对相关产品功能、防护等级及电磁兼容的要求。 |
无功补偿 |
| ARC | 测量I、U、Hz、cosΦ,具备过电压保护、欠流锁定、电网谐波过大保护功能,可控制电容器的投切,RS485/Modbus协议 | |
| ANSVC | ANSVC低压无功功率补偿装置并联在整个供电系统中,能根据电网中负载功率因数的变化通过控制器控制电力电容器投切进行补偿,无功功率补偿装置采用散件组成方案,主要以电容电抗、投切开关、控制器等组成。 | ||
| ANSVG | 补偿方式:线性补偿,全响应时间<5ms,瞬时响应时间≤100us;补偿效果:≥0.99,可补偿容性无功和感性无功,滤除5、7、9、11、13次以内的谐波;自身损耗:≤2%,效率:>98%;监控以及显示具备远程通讯接口,可以通过PC机实时监控;具有人性化的人机交互界面,可通过该界面看到系统和本体的实时电能质量信息,操作简单,可以远控,也可以本控;标准模块化设计,缩短交付周期,同时提高了使用的可靠性和可维护性。 | ||
温湿度控制器 |
| WHD72- 11/UT | 智能型温湿度控制器以数码管方式显示温湿度值,有加热器、传感器故障指示、变送功能、带有RS485通讯接口可供远程监控,用户可通过按键编程自行设定系统参数。该仪表集测量、显示、控制及通讯于一体,精度高、测量范围宽,是一种适合于各个行业和领域的温湿度测量控制仪表。具有许昌开普研究院有限公司、中心检测合格的型式检验报告证书和电磁兼容检验证书,产品防护等级均达到IP65,符合管廊综合监控系统中对相关产品功能、防护等级及电磁兼容的要求。 | |
智能网关 |
| Anet系列 | 8个RS485串口 2kV隔离, 2个以太网接口,支持Modbus RTU、IEC-60870-5-101/103/ 104、CJ/T188、DL/T645等通讯协议设备的接入,支持Modbus RTU、Modbus TCP、IEC-60870-5 -104等上传协议、支持多中心不同数据服务要求,支持断点续传,装置电源:220V AC/DC。 | |
应用场合(配电室) | 产品 | 型号 | 功能 | |
环境监测 | 温湿度 |
| / | 用于配电房温度和湿度。工作电源:AC/DC 85~265V 工作温度:-40.0℃~99.9℃ 工作湿度:0%RH~99%RH |
烟雾 |
| / | 光电式烟雾传感; 电源正极(DC 12V):+12V,继电器输出:常开触点 | |
水侵 |
| / | 接触式水浸传感器,监测变电所、电缆沟、控制室等场所积水情况,工作电源:DC 10-30V 工作温度:-20℃~+60℃ 工作湿度:0%RH~80%RH 响应时间:1s 继电器输出:常开触点 | |
局方检测 |
| / | 监测变压器、开关、开关柜的局部放电 | |
门禁 |
| / | 常开型;感应距离:30-50mm 材质:锌合金,银灰色电度 干接点输出 | |
摄像机 |
| / | 视频监控 | |
开关量模块 |
| ARTU-KJ8 | 8路开关量输入,8路继电器输出 | |
智能网关 |
| ANet-2E4SM | 4路RS485 串口,光耦隔离,2路以太网接口,支持ModbusRtu、ModbusTCP、DL/T645-1997、DL/T645-2007、CJT188-2004、OPC UA、ModbusTCP(主、从)、104(主、从)、建筑能耗、SNMP、MQTT;(主模块)输入电源:DC 12 V ~36 V 。支持4G扩展模块,485扩展模块,可扩展16路。 | |
应用场合 | 产品 | 型号 | 功能 | |
各变电所 | 0.4KV出线 |
| ARCM200 系列 | 用于检测TN-C-S、TN-S及局部TT系统中的剩余电流、温度等电气参数,从而预防电气火灾的发生。 |
各舱室 | 末端配电箱 |
| ARCM300 系列 | 用于检测TN-C-S、TN-S及局部TT系统中的剩余电流、温度等电气参数,从而预防电气火灾的发生。 |
区域 变电所 | 区域分机 |
| Acrel-6000/B3 | 接收电气火灾监控探测器信号,实现对被保护电气线路的报警、监视、控制与管理,采用485通讯 |
主变点所 监控中心 | 控制主机 |
| Acrel-6000/B | 接收电气火灾监控探测器信号和各区域分机数据,实现对被保护电气线路的报警、监视、控制与管理,可采用485通讯。 |
配套附件 | ||||
0.4kV电流 互感器 |
| AKH-0.66 | 测量型互感器,采集交流电流信号。 | |
应用场合 | 产品 | 型号 | 功能 | |
消防设备电源电压监控 |
| AFPM3-2AVM | 监测两路三相交流电压,二总线通讯。 | |
区域 变电所 | 区域分机 |
| AFPM100/B3 | 接收消防设备电源监控探测器信号,实现对被保护电气线路的报警、监视、控制与管理,可采用二总线通讯。 |
主变点所 监控中心 | 控制主机 |
| AFPM100/B1 | 接收消防设备电源监控探测器信号和各区域分机数据,实现对被保护电气线路的报警、监视、控制与管理,可采用二总线通讯。 |
应用场合 | 产品 | 型号 | 功能 | |
普通舱室 配电室 | 常开防火门 |
| AFRD-CK(YT)-65 AFRD-CK(YT)-85 AFRD-CK(YT)-120 | 监测常开防火门的开闭状态。 |
常闭防火门 |
| 单扇:AFRD-CB1(YT) 双扇:AFRD-CB2(YT) | 监测常闭防火门的开闭状态。 | |
防爆舱室 | 常开/常闭 防火门 |
| AFRD-MC | 监测常开、常闭防火门的开闭状态。 |
监测模块 |
| AFRD-CK/CB | 接收AFRD-MC的状态信息同步传输至防火门监控主机。 | |
区域 变电所 | 区域分机 |
| AFRD100/B3 | 接收防火门监控模块和防火门一体式探测器的信号,实现对防火门开闭状态的报警、监视、控制与管理,采用二总线通讯。 |
主变点所 监控中心 | 控制主机 |
| AFRD100/B | 接收防火门监控模块和防火门一体式探测器的信号以及各区域分机的实时数据,实现对防火门开闭状态的报警、监视、控制与管理,采用二总线通讯。 |
应用场合 | 产品 | 型号 | 功能 | |
各变电所和非防爆舱室 | 集中电源集中控制型消防应急标志灯具(高防护) |
| A-BLJC-1LROEII1W-A431H (单面安全出口) | 防护等级:IP67 设备尺寸:145*400*15 安装方式:壁挂 |
| A-BLJC-1LROEII1W-A431H (单面疏散出口) | 防护等级:IP67 设备尺寸:145*400*15 安装方式:壁挂 | ||
集中电源集中控制型消防应急照明灯具(高防护) |
| A-ZFJC-E*W-A604T8 单管式应急照明灯具 | 防护等级:IP67 设备尺寸:Φ26*L 400、Φ26*L 600、Φ26*L 1200 安装方式:吸顶、吊挂 设备功率:3、6、9、12、15W | |
| A-ZFJC-E*W-A603HC 高防护应急照明灯具 | 防护等级:IP67 设备尺寸:Φ175*H 60 安装方式:吸顶、壁挂 设备功率:3、6、9、12、15W | ||
| A-ZFJC-E*W-A603HE 高防护应急照明灯具 | 防护等级:IP67 设备尺寸:198*98*55 安装方式:吸顶、壁挂 设备功率:3、6、9、12、15W | ||
消防应急灯具电源 |
| A-D-0.3KVA-A200L A-D-0.5KVA-A200L A-D-0.75KVA-A200L A-D-0.1KVA-A200L | 防护等级:IP65 设备尺寸:500*400*200、600*480*230 安装方式:壁挂 设备功率:0.3、0.5、0.75、1KVA 回路数量:8路 | |
防爆舱室 | 集中电源集中控制型消防应急防爆标志灯具 |
| A-BLJC-1LROEI1W-A431EX (防爆单面出口) | 防护等级:IP65 防爆等级:Ex de IIC T6 Gb/Ex tD A21 IP66 T80℃ 设备尺寸:165*375*65 安装方式:壁挂 |
| A-BLJC-1LROEI1W-A431EX (防爆单面左向) | 防护等级:IP65 防爆等级:Ex de IIC T6 Gb/Ex tD A21 IP66 T80℃ 设备尺寸:165*375*65 安装方式:壁挂 | ||
集中电源集中控制型消防应急防爆照明灯具 |
| A-ZFJC-E*W-A630EX | 防护等级:IP65 防爆等级:Ex de IIC T6 Gb/Ex tD A21 IP66 T80℃ 设备尺寸:256*243*78 安装方式:壁挂 设备功率:3、6、10W | |
| A-ZFJC-E*W-A632EX | 防护等级:IP65 防爆等级:Ex de IIC T6 Gb/Ex tD A21 IP66 T80℃ 设备尺寸:Φ135mm*H 168mm 安装方式:吊管安装 设备功率:3、6、9、12、15W | ||
消防应急灯具电源(防爆) |
| A-D-0.3KVA-A200EX A-D-0.5KVA-A200EX A-D-1KVA-A200EX | 防护等级:IP43 设备尺寸:904*702*220、1354*702*220 安装方式:壁挂 设备功率:0.3、0.5、1KVA 回路数量:8路 | |
区域 变电所 | 区域分机 |
| A-C-A100/B3 | 区域分机通过总线网络实时监控各个终端,在险情发生时,自动将信息指令发布到每个终端,终端收到指令之后自动开始工作,如频闪、变向、开、灭灯等工作,实时指示安全的疏散路线。 |
中继器 |
| CAN转光纤中继 | 通过CAN转光纤中继实现把CAN总线传输转换至光纤传输延长通讯距离增加方案多样性。 | |
主变电所 监控中心 | 监控主机 |
| A-C-A100 | 监控主机通过总线网络实时监控各个终端,在险情发生时,自动将信息指令发布到每个终端,终端收到指令之后自动开始工作,如频闪、变向、开、灭灯等工作,实时指示安全的疏散路线。 |
4结语
城市地下综合管廊监控系统实施后,实现了地下综合管廊内环境设备运行状况的实时监测和控制,可及时处置安全隐患、事件,为地下综合管廊相关公共管线的对外服务提供可靠、安全、便利的环境保障。
监控系统可对管廊内各类型参数进行数据采集、存储及分析,实现故障、报警、安全等事件/事故息的处理并进行反馈控制。监控中心可实时动态显示管廊内各设备的状态、环境参数及其趋势,实现各种报表的打印,并将前端设备的状态、环境参数以及监控视频图像实时显示,使管廊内设备的运行状态和管廊的环境状态一目了然,实现“自动化监控、智能化管理"。
监控中心采用专业化的系统管理平台综合分析研判聚各类数据信息,评估事件等级,制定合理的控制处置策略,并进行相关外场巡检及关联业务部门协调联动,有效保障综合管廊的安全运行。
参考文献:
【1】裴作君.铁路隧道工程中BIM技术的应用[J]
【2】杨颖.城市地下综合管廊监控系统研究及应用.
【3】开云官方端网站登录入口企业微电网设计与应用手册.2022.05
上一篇:关于地下停车场的智能照明控制系统设计