
产品分类
更新时间:2024-11-18
浏览次数:451胡冠楠
开云网页版登录入口电气股份有限公司 上海嘉定
摘 要:2024年期间,国家能源局有关负责人表示,在能源领域,发展新质生产力的新动能关键在于持续推动新能源和可再生能源高质量跃升发展,其中以积极发展分布式新能源就是工作之一。分布式光伏以其灵活且环保的发电特性,正逐步成为推动能源转型的重要力量。在现代畜牧业中,利用养殖场屋顶及空地部署光伏板,能够有效利用闲置空间,直接为养殖场提供清洁、可持续的电力供应,显著降低运营成本。本文探讨了分布式光伏监控系统具备的功能,以及为确保养殖场分布式光伏发电站稳定运行的电气二次配置。
关键词:分布式光伏;养殖场;电气二次配置
1. 概述
海南农垦集团其前身是与海南省农垦总局实行政企合一的海南省农垦总公司,属中央直属三大垦区之一。该集团在海南有多个养殖场,本次工程涉及到红华养猪场、红华肉牛繁育场、白沙县邦溪镇和牛产业扶贫养殖场等多个项目,通过在厂房屋顶铺设分布式光伏,实现光伏发电自发自用,余电上网。
红华养猪场、红华肉牛繁育场分布式光伏发电项目均处于海南省临高县,实际装机容量分别为5.5MW和1.39MW;白沙县邦溪镇和牛产业扶贫养殖场位于海南省白沙黎族自治县,总建设规模为1.45MW。养殖场内光伏组件安装在厂房屋顶,经逆变后接入箱变升压至10kV,再接入厂区内原有用户10kV母线;
本文主要针对红华养猪场和红华肉牛繁育场分布式光伏发电项目介绍光伏电站的电气二次配置方案,包括保护站内发电运行安全的安全自动装置屏、完成调度上传的远动通讯屏,以及就地部署的Acrel-1000DP分布式光伏系统。
2. 分布式光伏设计
红华养猪场在养殖棚屋面建设分布式光伏电站,组件采用平铺设计,共使用单晶硅单面单玻545Wp组件10108片,每28片组件为一串,采用16台250kW逆变器,根据屋顶情况布置太阳能电池板,所发直流电由逆变器逆变流800V,接入箱变升压至10kV并入电网,并网形式为自发自用,余电上网。

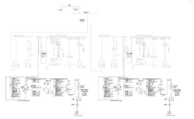
图2.1 红华养猪场光伏接入系统示意图
红华肉牛繁育场区采用550W单晶硅组件,安装50kW组串逆变器1台,70kW组串逆变器13台,100kW组串逆变器3台,110kW组串逆变器1台,整体光伏发电量1.39MW。项目不设置汇流箱,所有逆变器出线回路均接入升压变,设置1座10kV箱式变压器1600kVA,采用10kV电压等级并网。

图2.3 红华肉牛繁育场光伏接入系统示意图

图2.4 红华肉牛繁育场光伏组件布置图
3. 技术方案
以红华养猪场分布式光伏项目为例(以下简称“本项目"),本项目利用屋顶建设光伏发电系统,所发电量采用就地消纳,自发自用、余电上网的模式,光伏发电经逆变器、箱变升压至10kV,并网接入10kV电网原有线路。
为确保光伏发电系统实现高效、稳定、安全地运行,并顺利并入电网,我们配置了继电保护及安全自动装置、远动通讯屏和就地部署的Acrel-1000DP分布式光伏监控系统与AcrelCloud-1200光伏运维云平台。
3.1.1. 箱变内主要电气设备
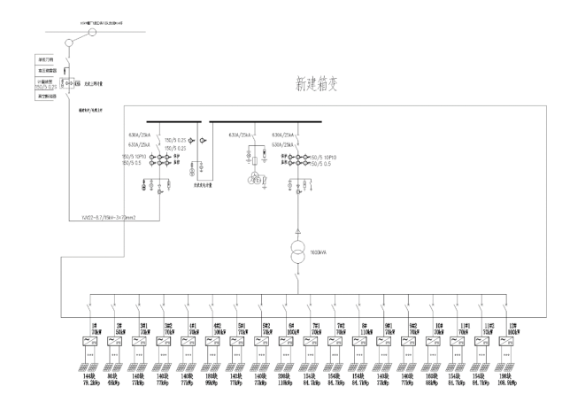
本项目箱变均配备干式三相双绕组低损耗无励磁调压变压器,容量为2500kVA,电压等级为10±5%/0.4kV,接线组别为“D,yn11",交流频率为50Hz,可以户外使用,能效等级满足国家规范要求。
高压侧包含进线柜、PT柜,计量柜,出线柜,高压配电室要求门加装电磁锁,当10kV侧带电时高压室内门不能打开;低压侧与逆变器连接。箱变内采用专用温湿度监控器,能测量箱变内部环境温度,输出环境温度测控接点,以满足变压器温度合理运行故障报警跳闸要求及箱变内部正常运行要求。
3.1.2. 继电保护及安全自动装置
1)并网线路继电保护及安全自动装置
当分布式光伏项目的并网线路发生短路故障时,线路保护应立即启动,判断故障并触发动作,瞬时断开与故障点相连的并网点断路器,故障对电网的影响范围,确保故障能够被快速且可靠地切除,从而保护其他非故障部分的正常运行。
10kV母线作为关键节点,应当配备先进的故障解列装置,装置可以实时监测母线频率和电压的功能,一旦检测到异常(如频率偏离正常范围、电压波动过大等),将立即执行紧急控制措施,自动跳开的断路器(通常是连接光伏系统与电网的专用开关),通过这样的方式,可以有效防止故障或异常状况的进一步扩大,保障电网和用户设备的安全。
2)防孤岛检测
在分布式光伏项目中,为防止孤岛现象对电网和人员安全造成威胁,需要配有完善的防孤岛方案,需要逆变器的孤岛检测机制、防孤岛保护装置、低压检测装置共同配合,一旦监测到孤岛状态,能够迅速并自动地与电网断开连接,此外,该方案还需严格遵守国家电网所制定的相关标准和规定,以确保其有效性和合规性。
3.1.3. 运动通讯设备
光伏电站内采用本地监控系统,应具备自动接收并执行调度部门发送的有功功率及无功功率变化的控制指令的能力。同时站内配置智能边缘计算网关,接入省级配网自动化主站,上传临高县调,采集上传的信息量应满足调度机构的运行需求,包括并网设备状态、并网点电压、电流、有功功率、无功功率和发电量等,调控应实时监视运行情况。
4. 系统结构
本项目致力于构建一个智能的光伏电站管理体系,集成了一套先进的分布式光伏监控系统Acrel-1000DP与光伏运维云平台AcrelCloud-1200,来实现对整个光伏发电站的掌控与优化,系统网络结构为分层、分布式,整体可分为三层:
第一层:站控层。在值班室设置操作员站,采用C/S架构分布式光伏监控系统,配置工控机和管理软件,工控机主要完成对光伏电站的数据集抄和界面显示功能;同时配置光伏运维云平台,采用B/S架构,支持多平台、多终端网络访问,形成了全站监控、管理,并具备与远方控制中心通信的接口。
第二层:通信层。通讯管理机以相对独立的方式分散在逆变器区域或箱变中,将整理分析采集到的数据,并通过网络或者4G上传至光伏服务器和系统,确保在站控层网络失效的情况下,仍能独立完成就地各电气设备的监测。
第三层:设备层。主要包括微机保护、防孤岛保护、电能质量在线监测装置、故障解列装置、多功能仪表、逆变器、箱变测控等设备。可以直接采集处理现场的原始数据,通过通信层传送给站控层,同时接收站控层发来的控制操作命令,经过有效性判断、闭锁检测、同步检测等,对设备进行操作控制。

图4.1系统网络示意图
项目配置设备清单如下表所示:
表4.1 方案设备列表

5. 系统功能
5.1.1. 综合看板
在分布式光伏电站的管理与运营中,需要一个高效、直观的综合看板,该看板集成了发电功率监测、装机容量记录、发电量统计以及光伏收益计算等核心功能,同时特别突出了对环保贡献的量化评估,包括计算二氧化碳减排量和节约的吨标煤量。
5.1.2. 分布式光伏电站运维管理
分布式光伏运维平台的报警处理分事故报警和预告报警。前者包括非操作引起的断路器跳闸和保护装置动作信号,后者包括一般设备变位、状态异常信息、模拟量越限/复限、计算机站控系统的各个部件、就地单元的状态异常等,针对不同等级的报警,处理方式有所区别,预告报警会有选择地向远方发送。
平台提供设备管理模块,允许运维人员对设备进行远程配置、参数调整、软件升级等操作,这些功能可以大幅提高运维效率,降低现场操作成本。平台灵活的配置选项,允许用户根据自己的需求对平台进行定制和扩展。

图5.2 设备管理界面
5.1.3. 光伏发电效率监测
平台集成了多项关键功能,来保障和提升电站的运营效能与经济效益。基于其强大的数据分析与统计能力,可以计算电站的年利用小时数,能够客观评估电站的发电效率和使用效率,为运维团队提供改进方向。同时,电站收益统计功能则根据发电数据和电价政策等因素,自动计算出电站的年度、季度或月度收益情况,为投资者和管理层提供直观、准确的财务数据支持,助力决策制定与优化。
逆变器负责将光伏电池产生的直流电转换为交流电并送入电网,其工作状态直接影响到电站的发电效率和稳定性。所以平台提供逆变器状态查询功能,通过实时查询逆变器的工作状态、转换效率及故障信息,运维团队可以及时发现并解决逆变器的问题,确保电站的发电效率和稳定性得到保障。

图5.3 发电站监测界面
6. 结语
分布式光伏发电作为分布式能源之一,在我国实践中通常包括户用光伏、工商业分布式光伏,而在畜牧业中应用分布式光伏发电,可以做到生态效益和经济效益“双丰收",同时也可以促进碳减排目标的实现,为构建绿色、智能、可持续的现代养殖业提供了强有力的支持。本文介绍了畜牧业中分布式光伏监控系统与光伏运维平台相结合的方案,通过集成数据采集、数据传输、数据存储、数据处理分析以及远程监控、设备管理等功能,显著提高了光伏发电系统的运行效率和可靠性,降低了运维成本。
上一篇:浅谈能耗系统在节能降耗的应用